清瀬市下宿2丁目2023年築戸建

3,980万円

東京都清瀬市下宿2丁目

西武池袋線「清瀬」駅バス15分「台田団地」停歩6分

武蔵野線「新座」駅徒歩31分

価格
3,980万円
間取り/建物面積
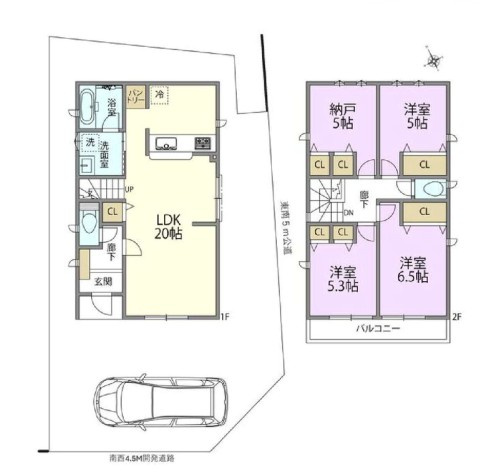
3LDK+S(納戸)/95.58㎡
所在地
東京都清瀬市下宿2丁目
築年
2023年2月(築3年)
駐車
有(2台)
交通

西武池袋線清瀬」駅 バス15分 「台田団地」 停歩6分

武蔵野線新座」駅 徒歩31分

清瀬市下宿2丁目2023年築戸建の基本情報

物件名
清瀬市下宿2丁目2023年築戸建
価格
3,980万円
建物面積
95.58㎡
土地面積
37.21坪(123.04㎡)
築年月
2023年2月(築3年)
総戸数
-
所在地
東京都清瀬市下宿2丁目
交通

西武池袋線清瀬」駅 バス15分 「台田団地」 停歩6分

武蔵野線新座」駅 徒歩31分

清瀬市下宿2丁目2023年築戸建の詳細情報

設備条件
  • 駐車2台可
  • 耐震構造
設備(その他)
    -
駐車場/月額
有(2台)/0円
土地権利
所有権
国土法届出
不要
用途地域
第一種低層住居専用
取引態様
仲介
引渡し
相談
備考
こだわりポイント満載の清瀬市下宿2丁目2023年築戸建。徒歩9分の場所に清瀬市立清明小学校があります。綺麗な室内の中古戸建て物件で素敵な日々をおくりませんか。ベタ基礎なので床下の湿気も気になりません。当社では、清瀬市エリアや西武池袋線清瀬付近での一戸建て情報をご紹介致します。まずはお気軽にお問い合わせ下さい。

清瀬市下宿2丁目2023年築戸建のコメント(おすすめポイント)

東南側道路に面する物件は環境が理想的です。地震のエネルギーを吸収する、制震構造になっています。こちらは中古の戸建て物件です。ゆったりとしたオープン外構のスペースには花や緑が溢れています。一戸建て探しなら当社までご連絡下さい。清瀬市エリアや西武池袋線清瀬付近の不動産情報をご紹介させていただきます。

清瀬市下宿2丁目2023年築戸建で募集中の物件

  1. 28.91坪 (95.58㎡)

    3,980万円(137.67万円/坪)

周辺施設

  • セブンイレブン清瀬下宿2丁目店の画像

    コンビニエンスストア

    セブンイレブン清瀬下宿2丁目店

    494m(7分)

  • デイリーヤマザキ清瀬台田団地店の画像

    コンビニエンスストア

    デイリーヤマザキ清瀬台田団地店

    552m(7分)

  • 第三保育園の画像

    保育園

    第三保育園

    632m(8分)

  • 清瀬稲荷公園の画像

    公園

    清瀬稲荷公園

    657m(9分)

  • 清瀬市立清明小学校の画像

    小学校

    清瀬市立清明小学校

    666m(9分)

  • ミニストップ清瀬下宿店の画像

    コンビニエンスストア

    ミニストップ清瀬下宿店

    710m(9分)

  • スギドラッグ清瀬旭が丘店の画像

    ドラッグストア

    スギドラッグ清瀬旭が丘店

    723m(10分)

  • 認定こども園ひかりの画像

    幼稚園

    認定こども園ひかり

    821m(11分)

  • アコレ清瀬旭が丘団地の画像

    スーパー

    アコレ清瀬旭が丘団地

    934m(12分)

  • 清瀬市立第三中学校の画像

    中学校

    清瀬市立第三中学校

    1006m(13分)

  • きよせ旭が丘記念病院(織本病院)の画像

    総合病院

    きよせ旭が丘記念病院(織本病院)

    1239m(16分)

  • 旭が丘広場の画像

    公園

    旭が丘広場

    1263m(16分)

  • 清瀬たから幼稚園の画像

    幼稚園

    清瀬たから幼稚園

    1379m(18分)

  • マルエツ清瀬中里店の画像

    スーパー

    マルエツ清瀬中里店

    1625m(21分)

  • 中里どろんこ保育園の画像

    保育園

    中里どろんこ保育園

    1680m(21分)

  • サンドラッグ清瀬下清戸店の画像

    ドラッグストア

    サンドラッグ清瀬下清戸店

    1858m(24分)

  • カインズ新座店の画像

    ホームセンター

    カインズ新座店

    1859m(24分)

  • 清瀬ゆりかご幼稚園の画像

    幼稚園

    清瀬ゆりかご幼稚園

    1967m(25分)

  • 清瀬市役所の画像

    市役所・区役所

    清瀬市役所

    2200m(28分)

  • エミュウ清瀬店の画像

    その他

    エミュウ清瀬店

    2322m(30分)

近隣の物件

  1. 清瀬市野塩4丁目

    8LDK (216.72㎡)

    5,498万円

  2. 清瀬市中里3丁目

    4LDK (93.98㎡)

    4,390万円

  3. 清瀬市上清戸2丁目

    4LDK (101.43㎡)

    6,399万円

  4. 清瀬市竹丘3丁目

    4LDK (86.94㎡)

    3,450万円

よく見られている物件

  1. 所沢市大字下安松

    3LDK (84.87㎡)

    3,780万円

  2. 小金井市貫井北町3丁目

    3LDK (67.61㎡)

    3,480万円

  3. 清瀬市野塩4丁目

    8LDK (216.72㎡)

    5,498万円

  4. 清瀬市旭が丘1丁目

    5LDK (102.67㎡)

    3,780万円

清瀬市下宿2丁目2023年築戸建

お気軽にお問い合わせください

無料お問い合わせ

株式会社ALL不動産 本店

042-497-3260

9:30~18:30

(休:年中無休)